Proiect

Locuință P

jud. Timiș

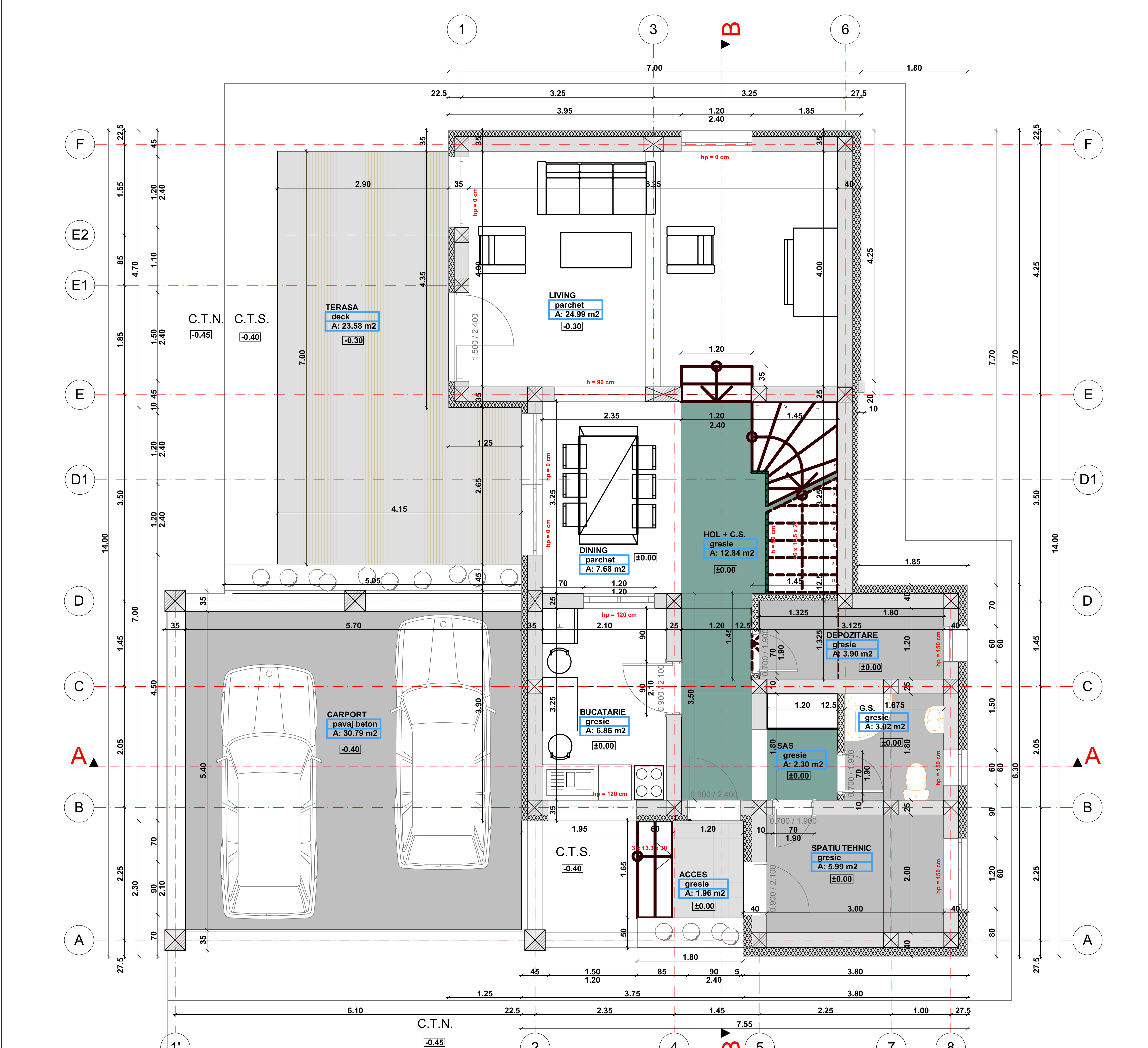
Vă prezentam o locuință cu două niveluri, destinată unei tinere familii care își dorește copii în viitor.

Soluția funcțională este eficient conformată, iar estetica este subîntinsă de eleganța minimalistă, într-o cromatică plăcut temperată.

Spațiile generoase sunt potențate de amplasarea pe teren. Spațiile deservite ale parterului întrețin un dialog care creează un sentiment de delectare, de mulțumire, iar suita matrimonială a etajului devine o oază.

Concept | Proiectare - arh. C. Myers
Modelare 3D - arh. C. Myers, arh. T. Mahu
Structura de rezistență - ing. Cătălin Vîlceanu | Blue Building Project SRL

Locuință P

jud. Timiș

Locuință P

jud. Timiș

Locuință P

jud. Timiș

Locuință P

jud. Timiș

Locuință P

jud. Timiș

Locuință P

jud. Timiș

Locuință P

jud. Timiș

Locuință P

jud. Timiș

  • 1
  • 2
Flying Vixen Studio | Arhitect

Proiect

Locuință P

jud. Timiș

Vă prezentam o locuință cu două niveluri, destinată unei tinere familii care își dorește copii în viitor.

Soluția funcțională este eficient conformată, iar estetica este subîntinsă de eleganța minimalistă, într-o cromatică plăcut temperată.

Spațiile generoase sunt potențate de amplasarea pe teren. Spațiile deservite ale parterului întrețin un dialog care creează un sentiment de delectare, de mulțumire, iar suita matrimonială a etajului devine o oază.

Concept | Proiectare - arh. C. Myers
Modelare 3D - arh. C. Myers, arh. T. Mahu
Structura de rezistență - ing. Cătălin Vîlceanu | Blue Building Project SRL

Locuință P

jud. Timiș

Locuință P

jud. Timiș

Locuință P

jud. Timiș

Locuință P

jud. Timiș

Locuință P

jud. Timiș

Locuință P

jud. Timiș

Locuință P

jud. Timiș

Locuință P

jud. Timiș

  • 1
  • 2