Proiect

Extindere locuință P

jud. Timiș

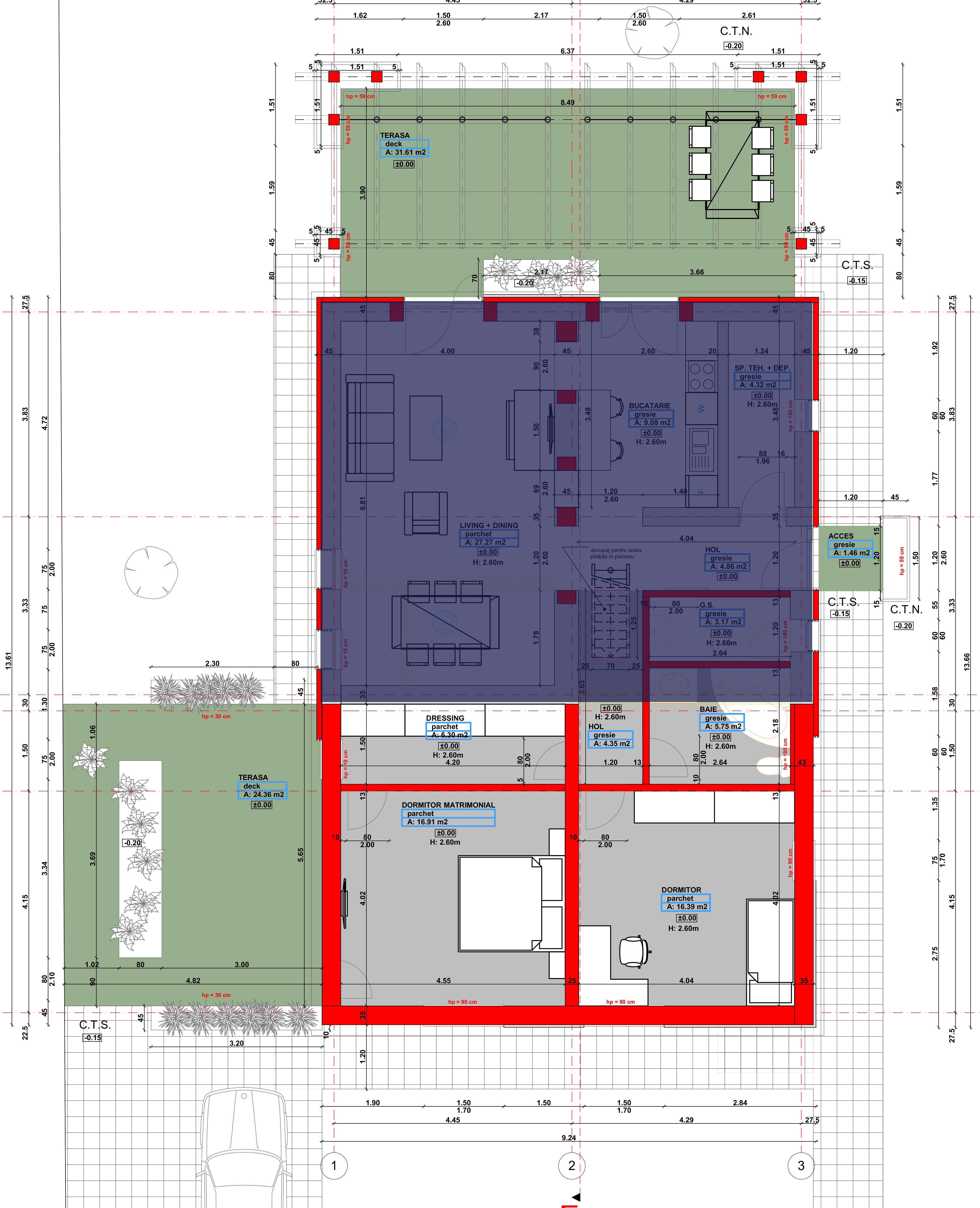
Vă prezentăm extinderea unei locuințe unifamiliale parter, amplasate în țesut urban. Locuința existentă prezenta o schemă funcțională incomodă, cu două accese și marcată de absența comunicării între spațiile interioare, fiind de fapt o extindere a construcției inițiale, compuse din doar două încăperi.

Am optat pentru a reconfigura schema funcțională prin adiția unei zone de noapte către stradă și prin augumentarea vitrajelor deschise către curte. Raportul existent-nou este marcat cromatic și ca grosime a fațadei.

Estetic-compozițional am implementat câteva accente de factură praerie house, prin evazarea sageacului, extensia plăcii peste parter într-o consolă exprimând robustețe și reiterarea acesteia la nivelul parapeților terasei principale, decorația cu șprosuri a vitrajelor și inserții de cărămidă aparentă.

Concept | Proiectare - arh. C. Myers
Modelare 3D - arh. T. Mahu
Structura de rezistență - ing. Cătălin Vîlceanu | Blue Building Project SRL
Instalații - ing. Cătălin Niculae | Exiteam Project SRL

Extindere locuință P

jud. Timiș

Extindere locuință P

jud. Timiș

Extindere locuință P

jud. Timiș

Extindere locuință P

jud. Timiș

Extindere locuință P

jud. Timiș

Extindere locuință P

jud. Timiș

Extindere locuință P

jud. Timiș

Extindere locuință P

jud. Timiș

Extindere locuință P

jud. Timiș

  • 1
  • 2